ALPE D’HUEZ : Résidence neuve à côté du golf
Lot 201 – Située dans le quartier des Bergers, à…
940,000€
Le Bourg-d'Oisans
Vente
384,000€
Référence :
0509m - C302
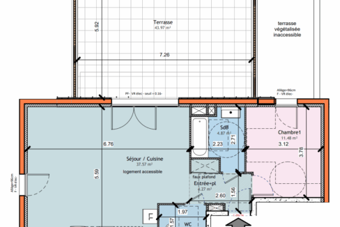
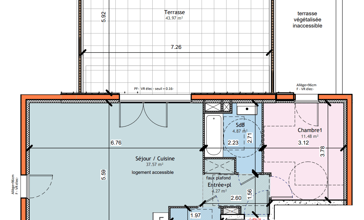
À quelques pas du centre de Bourg d’Oisans, dans un environnement calme et vert, cette superbe future copropriété composée de 3 petits bâtiments propose 32 appartements du T2 au T4, dont quelques-uns en duplex.
Celui-ci, en duplex et au dernier étage, offre 3 grandes chambres, dont 2 à l’étage, un séjour avec cuisine de 37m2, s’ouvrant sur une superbe terrasse de 43m2 exposée Sud-Ouest. Salle d’eau, salle de bain et toilettes séparées – Possibilité d’acheter un garage fermé.
S’agissant d’une construction neuve, vous bénéficiez de frais de notaire réduits et vous ne paierez pas de taxe foncière la première année.
C302 – Prix : 384 000 € – Honoraires à charge vendeur. Tél : 04 58 47 90 91 – www.prestige-transaction-huez.fr
Lot 201 – Située dans le quartier des Bergers, à…
940,000€
À quelques pas du centre de Bourg d’Oisans, dans un…
240,000€
Lot 101 – Située dans le quartier des Bergers, à…
825,000€
VOUS ÊTES PLUTÔT ?
Prestige Transaction est une marque du Groupe Prestige
ALPE D’HUEZ : Le Maona : Appartement refait à neuf avec possibilité d’acheter un garage fermé